Reisebüro für Sportreisen
Innenarchitektur und Markenraumgestaltung für ein Reise- und Bikeunternehmen. Organisch geformtes multifunktionales Möbel, textile Landschaftsprojektion, Farb- und Material-konzept mit Bezug zu Natur, Dynamik und Bewegung. Raum als Markenbotschaft.

Projekt
Reisebüro für Sportreisen
Fläche
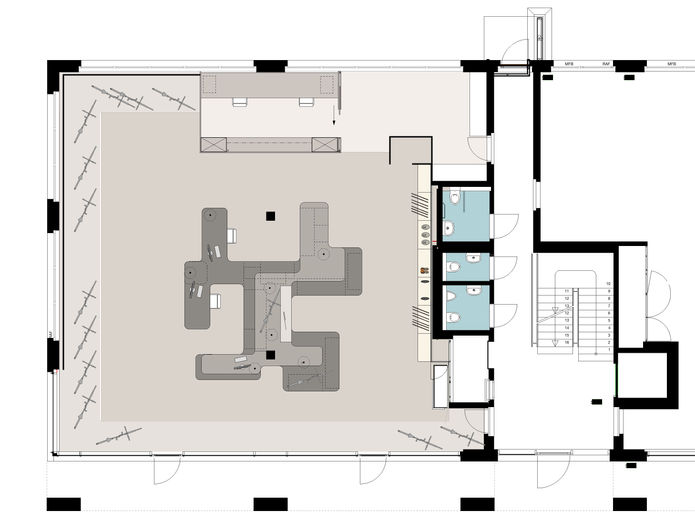
250 m2
Kategorie
Umbau mit Markenbotschaft
Art der Arbeit
Projektplanung
Ausführung
Bauleitung
Objekteinrichtung
Team
Mitarbeiter:innen
Dieses Konzeptprojekt widmet sich der Identität eines Unternehmens, das Sport- und Biketouren in südliche Landschaften anbietet. Die Gestaltung übersetzt die Dynamik des Rennradfahrens und die Topografie der bereisten Berglandschaften in den Innenraum.
Zentrales Element ist ein grossformatiges, organisch geformtes Möbel – die Landschaftsbank. Seine geschichtete, fliessende Form erinnert an Höhenlinien und Passstrassen und bildet die räumliche Mitte.
Es fungiert gleichzeitig als Arbeitsplatz, Verkaufstheke, Ausstellungsfläche und Stauraum. Die modulare Konstruktion ermöglicht flexible Anpassungen an unterschiedliche Nutzungsszenarien.
Eine grossflächige Fotografie einer spanischen Wüstenlandschaft, auf Textil gedruckt und vor der Fensterfront platziert, schafft eine atmosphärische Tiefenwirkung und vermittelt die Vorfreude auf die Reisen – sichtbar von innen wie von aussen.






